Neues Forum am Rathaus
Neues Forum am Rathaus

Anstelle der alten Sport- und Kulturhalle in Seeheim soll ein neues Zentrum für die Bürgerinnen und Bürger entstehen: Das neue Forum am Rathaus, ein Gebäudeensemble mit einer Halle für Sport, Kultur und Zusammenkünften, einer Mediathek sowie einem Verwaltungstrakt.
Warum ein Neubau?
Ende 2016 musste die Sport- und Kulturhalle in Seeheim geschlossen werden. Aufgrund einer undichten Stelle im Dachbereich war es zu einem größeren Wasserschaden gekommen, eine Reparatur stellte sich als unwirtschaftlich heraus.
Was soll mit der ohnehin sanierungsbedürftigen Halle passieren? Diese Frage galt es in Folge zu klären. Mehrere Varianten waren dabei im Gespräch: von einer Kernsanierung bis zum Neubau mit Büroräumen für die Verwaltung.
Die Gemeindevertretung entschied sich im Frühjahr 2018 für die „Mittellösung light“, die eine Vergrößerung der Halle mit einem Sitzungssaal für die Gemeindevertretung und einer zentralen Gemeindebibliothek vorsah.
Nach einem massiven Schimmelschaden in einem Archivstandort der Gemeinde, der im Herbst 2019 zu Tage trat, wurde die Entscheidung zur „Mittellösung light“ revidiert. Die Gemeindevertretung gab der „Maximallösung 3G“ den Vorzug, um zusätzlich Raum für Büros und ein neues zentrales Archiv zu schaffen. Ein weiterer Vorteil: Die Gemeindeverwaltung kann das angemietete Gebäude am Georg-Kaiser-Platz aufgeben, in dem neben Bürgerbüro und Ordnungsamt eine große Zahl von Büroräumen untergebracht sind, und kann künftig eigene Räumlichkeiten nutzen.
Was kommt Neues?
Die Gemeindevertretung hat sich für die Beauftragung des Planungsbüros Loewer + Partner Architekten aus Darmstadt entschieden, das bereits ein renommiertes Bauprojekt in Seeheim-Jugenheim realisiert hat: die Sporthalle an der Düne auf dem Schuldorf-Gelände. Die Architekten konnten vor dem Auswahlgremium mit ihrer Konzeptidee eines „Dorfes“ anstelle einer Halle überzeugen, was sich für sie aus den verschiedenen Nutzungsanforderungen entwickelt hat. Entstehen sollen drei unterschiedlich große Gebäudeteile, die durch ein gemeinsames Foyer miteinander verbunden sind. Es gibt eine große Halle für Sport- und Kulturveranstaltungen, die zugleich Platz bietet für kleine wie größere Sitzungen. Der mittelgroße Gebäudeteil ist für die Gemeindeverwaltung vorgesehen mit Büroräumen sowie dem neuen Zentralarchiv. Im kleinsten der drei Gebäudeteile findet die Mediathek Unterkunft, die die bisherigen Gemeindebüchereien zusammenführen soll.
Der so entstehende Dreiseitenhof versteht es nicht nur, sich harmonisch in die Umgebung einzufügen, sondern bildet zusammen mit dem Rathaus sowie den Freiflächen rundherum ein neues Ganzes, das die vielfältigen Angebote für die Bürgerinnen und Bürger an einem Ort bündelt und als lebendiger Mittelpunkt des Gemeindelebens die Nutzung und den Aufenthalt attraktiv gestaltet.
Das Ensemble mit seinen drei Gebäudeteilen steht in seiner Bauweise zum einen für Moderne und Transparenz, zum anderen verweist es auf eine traditionelle Baukultur, die die alten Ortskerne in der Gemeinde immer noch prägt. Sichtbar wird dies etwa in der Gestaltung der Dächer in Satteldachform mit einer Neigung von 32 Grad, was der durchschnittlichen Dachneigung in den früheren Dorfbereichen entspricht. Im Herbst 2024 sollen die Bauarbeiten abgeschlossen sein und das neue Ensemble mit Halle, Mediathek und Verwaltungstrakt zur Nutzung zur Verfügung stehen.
Projektverlauf

Januar 2026: Forum am Rathaus feierlich eröffnet
Nach dem Einzug der Verwaltung im November sowie dem Abend der offenen Tür im Dezember fand jetzt der Festakt zur feierlichen Eröffnung des Forums am Rathaus statt. „Was für ein besonderer Moment für unsere Gemeinde“, so Bürgermeisterin Birgit Kannegießer in ihrer Begrüßungsansprache. „Heute weihen wir nicht einfach ein neues Gebäude ein: Heute eröffnen wir einen neuen Ort der Begegnung, einen Ort für Austausch, für Kultur, für Diskussion, für Feiern – kurz: einen Ort für das gelebte Miteinander in unserer Gemeinde.“ Alle Redner an diesem Abend feierten das Gebäudeensemble begeistert als neue Mitte in Seeheim-Jugenheim. Modern, hell und toll geworden: Das war nahezu durchweg das Urteil der Besucherinnen und Besucher zum Forum beim Abend der offenen Tür gewesen, dem sich die Gäste beim Festakt übereinstimmend anschlossen. Übergeben wurde das Forum mit der offiziellen Eröffnungsfeier nicht nur an die Verwaltung sowie an die Vereine, die ab dem 1. Februar in der Halle ihren Trainingsbetrieb aufnehmen können. Auch für die Vertreter der Kommunalpolitik gibt es jetzt für ihre Sitzungen zeitgemäße Tagungsmöglichkeiten. „Und wir übergeben das Forum am Rathaus unseren Bürgerinnen und Bürgern, die hier einen offenen Ort der Begegnung finden für ganz unterschiedliche Veranstaltungsformate und Feste“, betonte die Bürgermeisterin. Neben dem Dank, den sie abschließend an alle Projektbeteiligten richtete, hatte Birgit Kannegießer auch noch eine gute Nachricht zu den Kosten: Mit 24,8 Millionen Euro angesetzt, können sie dank guter Projektführung um rund 1 Million Euro unterschritten werden können. Dass es sich im Forum ausgezeichnet feiern lässt, dafür lieferte der Festakt als erste große Veranstaltung gleich den direkten Beweis. Das abwechslungsreiche Programm zwischen den Redebeiträgen mit den Dragon Drums, dem Chor Stimmbar, der Seemer Fastnachstgaudi und dem Bläserensemble Brasso con toni fand viel Applaus. Bei Sängerin Nora Lessenich, die den musikalischen Schlusspunkt setzte, hielt es die Gäste schließlich nicht mehr auf den Stühlen. Organisiert und umgesetzt wurde der Festakt, bei dem nicht nur die Eröffnung des Forums, sondern auch die Verschwisterung mit der bulgarischen Partnergemeinde Karlovo begangen wurde, mit viel Engagement durch Mitarbeiterinnen und Mitarbeiter der Gemeindeverwaltung.

Dezember 2025:„Abend der offenen Tür“ im Forum am Rathaus
Parallel zum letzten FeierAbendMarkt in diesem Jahr am Donnerstag, dem 11. Dezember, veranstaltet die Gemeinde Seeheim-Jugenheim einen „Abend der offenen Tür“ im Forum am Rathaus, das Mitte November mit dem Bezug des neuen Verwaltungsgebäudes in Betrieb genommen wurde. „Wir möchten die Bürgerinnen und Bürger ganz herzlich dazu einladen, sich ein Bild von den Räumlichkeiten des Forums mit Halle, Mediathek und Verwaltungsgebäude in einem Rundgang zu machen und mit Mitarbeitern, Nutzern und Architekten ins Gespräch zu kommen", so Bürgermeisterin Birgit Kannegießer. Geöffnet hat das Forum zum „Abend der offenen Tür“ von 17 bis 20 Uhr. Auf dem Platz vor dem Rathaus sowie vor Eingang zum Forum findet ebenfalls von 17 bis 20 Uhr der beliebte FeierAbendMarkt statt. Neben Speisen, Getränken und Marktwaren gehören Stände von lokalen Kunsthandwerkern und Vereinen wieder zum Angebot und machen das Einkaufen und Genießen zum feierabendlichen Vergnügen. Besucher werden gebeten, möglichst zu Fuß, mit dem Rad oder mit den öffentlichen Verkehrsmitteln zu kommen, da die Zahl der Parkplätze rund um Rathaus und Forum beschränkt sind. Wer das Auto nutzen muss, kann die Parkplätze hinter dem Rathaus sowie am Friedhof nur über die Bergstraße und dann die Straße „Hinter der Kirche“ erreichen, da der Georg-Kaiser-Platz in Höhe der Einfahrt zur Tiefgarage am alten Verwaltungsgebäude bei den FeierAbendMärkten aus Sicherheitsgründen vollgesperrt ist.

November 2025: Angekommen
Nach einer Woche mit Einpacken und Auspacken rund um das Verwaltungsgebäude am Georg-Kaiser-Platz, dem Rathaus in der Schulstraße sowie dem neuen Verwaltungsgebäude im Forum am Rathaus steht der Bürgerservice der Gemeindeverwaltung seit dem 17. November wieder wie gewohnt zur Verfügung - im neuen Forum! „Ich bin allen Mitarbeiterinnen und Mitarbeitern sehr dankbar“, so Bürgermeisterin Birgit Kannegießer „Dank der tatkräftigen Mithilfe hat alles prima geklappt und wir konnten den Umzug gut stemmen.“
Im Verwaltungsgebäude des Forums sind jetzt neben dem Bürgerbüro, dem Standesamt, dem Seniorenbüro und den weiteren Mitarbeitern aus dem Fachbereich 2 „Soziales“ die Gemeindewerke, das Gemeindearchiv sowie der komplette Fachbereich 3 „Bauen und Umwelt“ untergebracht. Zusätzlich gibt es hier Besprechungsräume, die unter anderem die Behindertenbeauftragte, der Rentenberater, das Schiedsamt, das Ortsgericht oder die Energieberatung der Verbraucherzentrale nutzen, um ihre Beratungstermine anzubieten.

September 2025: Umzug geplant am 11. November
Am 11. November soll der Umzug der Verwaltung in das neue Gebäudeensemble starten. Dass es nicht mehr lange dauern kann mit der Inbetriebnahme des Forums, zeigt sowohl der Blick nach außen, wo die Pflasterarbeiten dem Gelände Struktur verleihen und in Kürze die Bepflanzung folgt. Auch im Innenbereich tut sich so einiges. Durch die großen Fenster der Mediathek sind bereits die Bücherregale sowie die restliche Möblierung zu sehen, im neuen Verwaltungsgebäude wurden Teile der Möbelausstattung angeliefert und in der Halle eine ganze Reihe von Sportgeräten. Mit Hochdruck wird momentan an den technischen Anlagen gearbeitet, damit die Abnahme durch die Sachverständigen erfolgen und die Photovoltaikanlage sowie die Wärmepumpe mit der Eisspeicherheizung in Betrieb genommen werden können. In der Halle für den Sport- und Veranstaltungsbetrieb steht zurzeit die Fertigstellung der Prallwand im Fokus. Schwierigkeiten bei der Ausführung waren auch der Grund, dass der Umzugstermin noch einmal von Mitte Oktober auf Mitte November korrigiert werden musste. „Es ist schade, dass wir nach dem guten Start mit dem Bau am Forum zum Ende hin doch noch ein paar zeitliche Verzögerungen hinnehmen müssen“, so das Resümee von Bürgermeisterin Birgit Kannegießer. „Umso erfreulicher ist es, dass die veranschlagten Kosten unterschritten werden können.“

Juni 2025: Auf der Zielgeraden - Inbetriebnahme im Herbst in Sicht
Immer noch sieht es rund um das Forum am Rathaus sehr nach Baustelle aus, doch so nach und nach lässt sich verfolgen, dass sich auch an den Außenanlagen etwas tut. Wie es von innen in den einzelnen Gebäuden ausschaut, davon hat sich zunächst der Gemeindevorstand ein Bild gemacht, weitere Gremien und die Mitarbeiterinnen und Mitarbeiter der Gemeindeverwaltung folgten. Für die Bürgerinnen und Bürger ist vor der geplanten Inbetriebnahme ein Tag der offenen Tür in Planung.

Oktober 2024:Dacharbeiten nähern sich ihrem Ende
Nicht nur die nahezu abgeschlossen Dacharbeiten, sondern auch die Verputzarbeiten an den Fassaden tragen dazu bei, dass das Forum immer mehr sein eigentliches Aussehen erhält. Das schwarze Dach und die Fassaden in einem Beigegrau wurden mit dem Amt für Denkmalschutz abgestimmt. Wichtig war dem Amt dabei, die Farbgestaltung mit den beiden denkschmalschützten Gebäuden in der näheren Umgebung in einen harmonischen Bezug zu setzen: mit dem Rathaus und mit der Laurentiuskirche. Die schwarze Farbe der Dachziegel lässt außerdem zu, dass die Photovoltaikmodule auf dem Verwaltungsgebäude und der Halle nicht in den Vordergrund treten. Beim Innenausbau stehen zurzeit die technischen Installationen für Strom, Wasser und Abwasser im Fokus.

März 2024: Stand der Dachdeckerarbeiten
Nachdem im vergangenen Jahr trotz mehrfacher Ausschreibungsverfahren kein Dachdecker für die Ausführung der Steildächer am Forum gefunden werden konnte und Notdächer als Schutz vor witterungsbedingten Schäden an der Holzkonstruktion errichtet werden mussten, geht es endlich auch mit diesem Gewerk voran. In seiner Sitzung am 19. Februar hat der Gemeindevorstand die Beauftragung für die Dachdeckerarbeiten erteilt und Mitte März starten die Arbeiten am Dach des Verwaltungsgebäudes, die bis Ende April abgeschlossen sein sollen.

November 2023: Notdach vor dem Winter
Nachdem Rohbau und Dachstuhl planmäßig fertiggestellt waren, wurde im September beim Forum am Rathaus das Richtfest gefeiert. Im Anschluss sollten die Dachdeckerarbeiten beginnen, doch trotz dreimaliger Ausschreibungsverfahren seit dem Frühjahr konnte kein Unternehmen für die Ausführung der Steildächer vor dem Winter gefunden werden. Jetzt erhalten die drei Gebäudeteile Notdächer, um zum einen witterungsbedingte Schäden an der Holzkonstruktion zu vermeiden.

September 2023:Richtfest
Der Rohbau ist fertig, der Dachstuhl errichtet: Beim neuen Forum am Rathaus mit seinen drei Gebäudeteilen für Verwaltung, Öffentlichkeit, Vereine, Veranstaltungen und Mediathek kann das Richtfest gefeiert werden. Alle Bürgerinnen und Bürger in Seeheim-Jugenheim wurden herzlich dazu eingeladen.

Sommer 2023: Rigolenanlage und Eisspeicher
In einer großen Baugrube im Bereich der Außenanlagen wurde Platz geschaffen, um die unterirdische Installation einer Tunnelrigolenanlage zur nachhaltigen Versickerung von Regenwasser unterzubringen. Eine weitere Grube entsteht im direkten Anschluss. Dort wird als nächstes der Eisspeicher eingebaut, der als Teil der Heizungsanlage zum regenerativen Energiekonzept des Forums gehört. Eine 21 Meter lange und 11,5 Meter breite Baugrube wurde im Juni an der Baustelle vor dem dreiteiligen Gebäudeensemble ausgehoben, deren Erdaushub anschließend auf das gemeindeeigene Grundstück am Zeppelinweg zur Zwischenlagerung gebracht wurde. In der Grube wurden drei Regenwasser-Pufferspeicher eingebaut, deren Röhren-Bauteile wie U-Boote aus Beton anmuten. Die sogenannte Tunnelrigolenanlage ähnelt in ihrer Funktion einem Regenrückhaltebecken und dient der nachhaltigen Versickerung von Regenwasser. Große Niederschlagsmengen werden den Rigolen über Halbschalen im Boden sowie über Sammelleitungen von den Dächern der Forumsgebäude zugeführt und in den miteinander verbundenen Röhren verteilt. Das Wasser wird dann nach und nach entsprechend der Versickerungsfähigkeit des Bodens dem Erdreich und damit dem Grundwasser wieder zugeführt, ähnlich wie beim natürlichen Wasserkreislauf. Mit dem ausgehobenen Erdmaterial wird die Baugrube für die Tunnelrigolenanlage wieder verfüllt. Direkt daneben wird eine weitere Grube für den Eisspeicher ausgehoben, der neben einer Sole-Wasser-Wärmepumpe Teil der Heizungsanlage mit erneuerbaren Energien ist. Der Eisspeicher besteht aus einem zylindrisch betonierten Behälter mit einem Innendurchmesser von circa 12 Metern und einer Raumhöhe von etwa 3,30 Meter. In die später mit Wasser gefüllte Zisterne werden große Leitungsspiralen eingebracht, in denen eine frostsichere Flüssigkeit (Sole) zirkuliert. Über zwei Wärmetauscher, ein Entzugs- und ein Regenerationswärmetauscher, findet ein Wechsel zwischen Gefrieren und Auftauen des Wassers statt. Die Energie, die dabei freigesetzt wird, dient in den kalten Monaten der Beheizung des Neubaus. Im Sommer soll der Prozess umgekehrt zur Kühlung der Räumlichkeiten beitragen.

2023:Ausführung und Umsetzung in der Leistungsphase 8
In dieser Phase wird zurzeit der Rohbau erstellt. Dabei sind der Keller und das Erdgeschoss fertig. Das 1. OG im Verwaltungstrakt ist bereits fertiggestellt und die Umfassungswände der Mediathek und der Sporthalle werden derzeit errichtet. Im gesamten Gebäude werden die Fertigteiltreppen eingesetzt und die Grube für die Rigolen in den Außenanlagen ausgehoben. Einen guten Eindruck zum Forstschritt der Maßnahmen bekommt man durch die Bilder in der Bildergalerie auf der Seite "FotoGalerie".

2023: Planung in Leistungsphase 5-7
In der Leitungsphase 5 wird die Ausführungs- und Detailplanung in allen Fachdisziplinen wie zum Beispiel Architektenplanung und Haustechnik ausgearbeitet. Weiterhin wird in der Phase 6 die Ausschreibung zur Umsetzung der einzelnen Fachgewerke erstellt. Aufgrund des Bauvolumens ist eine europaweites Vergabeverfahren erforderlich. Die Schadstoffsanierung, der Verbau sowie Abbruch sind bereits abgeschlossen. Die Vergabe des Rohbaus ist umgesetzt und in der Umsetzungsphase. Vergeben und noch nicht tätig sind Zimmermannsarbeiten und der Rohbau für den Eispeicher. Diese sind beauftragt und werden im Anschluss an die Rohbauarbeiten ausgeführt. Laufende Verfahren sind Dachdeckerarbeiten sowie Glas- und Metallelemente.

Februar 2023: Grundsteinlegung
Im Rahmen der Grundsteinlegung wurde eine Zeitkapsel mit Dokumenten und aktuellen Zeitungsseiten durch Bürgermeister Alexander Kreissl gemeinsam mit den Fraktionsvorsitzenden in der Seeheim-Jugenheimer Gemeindevertretung und dem Architekten eingemauert. Die Arbeiten am neuen Forum am Rathaus kommen nach dem 1. Spatenstich im Juli vergangenen Jahres planmäßig voran.

Juli 2022: Spatenstich
Nach sechs Jahren mit vielen Planungsrunden, Änderungen, Diskussionen und politischer Entscheidungsfindung haben mit dem 1. Spatenstich am 15. Juli 2022 die sichtbaren Arbeiten am neuen Forum am Rathaus mit dem Rückbau des alten Baukörpers begonnen. Das neue Forum am Rathaus ist multifunktional, modern und lässt eine neue Nutzungsvielfalt entstehen. Es bietet vielfältige Möglichkeiten für Bildung, Versammlung, Arbeit, Sport, Kunst, Debatte und Feiern. Das Forum erfüllt damit als zentraler Treffpunkt für Bürger, Vereine, Interessengruppen und Politik auch eine wichtige soziale Funktion des Miteinanders bei gemeinsamen Aktivitäten und im Austausch.„Das Gebäudeensemble ist mit erheblich mehr Flächen, dank eines innovativen Energiekonzeptes, hocheffizient und erfüllt damit die Vorgaben für ein Effizienzgebäude der Stufe 40“, unterstreicht Bürgermeister Alexander Kreissl. Der 1. Spatenstich fand gemeinsam durch die Vorsitzende der Gemeindevertretung, den Bürgermeister, den Planer, den Projektsteuerer und die vier Fraktionsvorsitzenden in der Gemeindevertretung statt.

Frühjahr 2022: Preissteigerungen in der Baubranche
Nach Berechnungen des Statistischen Bundesamtes sind die Preise für den Neubau von Nichtwohngebäuden in Deutschland im I. Quartal 2022 um 15,3 % im Vergleich zum Vorjahresquartal gestiegen. Diese Entwicklung hat auch Auswirkungen auf die Kostenentwicklung des Projektes.
Das neue Forum wird demnach als Effizienzgebäude der Stufe 40 mit entsprechenden zusätzlichen Maßnahmen zur Dämmung, mit hocheffizienter Wärmepumpenanlage mit Eisspeicher und einer Photovoltaikanlage errichtet. Um dies zu realisieren, wurde von der Gemeindevertretung die Baukostenobergrenze von 17 Mio. Euro in Bezug auf die beschlossenen Änderungen und Zusatzleistungen aufgehoben. Derzeit stehen aus dem Haushalt als Gesamtbudget inklusive der Reserve für Preissteigerungen und Unvorhergesehenes insgesamt 24,8 Mio.€ zur Verfügung.

Februar 2022: Bürgerbeteiligung zur Namensgebung
Im Zuge einer Bürgerbeteiligung konnten Bürgerinnen und Bürger kreativ werden und Vorschläge für den neuen Namen des neuen Gebäude-Ensembles beisteuern. Eine Jury wertete die Ideen aus und die Gemeindevertretung beschloss den neuen Namen im Februar 2022:Forum am Rathaus

September 2021: Neues Energiekonzept
Die Gemeindevertretung hat am 30. September 2021 beschlossen, ein neues Energiekonzept anstatt des bis dahin vorgesehenen Konzeptes zu realisieren. Dieser Beschluss der Gemeindevertretung wurde von ihr im Februar 2022 nochmals einstimmig bestätigt.
Das neue Forum wird demnach als Effizienzgebäude der Stufe 40 mit entsprechenden zusätzlichen Maßnahmen zur Dämmung, mit hocheffizienter Wärmepumpenanlage mit Eisspeicher und einer Photovoltaikanlage errichtet. Um dies zu realisieren, wurde von der Gemeindevertretung die Baukostenobergrenze von 17 Mio. Euro in Bezug auf die beschlossenen Änderungen und Zusatzleistungen aufgehoben.

Mai 2021: Runder Tisch zu Küche und Keller
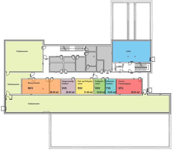
Bei der letzten Sitzung des "Runden Tisches" am 5. Mai 2021 ging es schwerpunktmäßig um zwei Themen: die Verteilung der Kellerräume sowie die Gestaltung der Küche. Zusätzlich zu den bisherigen Nutzern im Kellergeschoss wie dem Schützenverein und anderen Sportvereinen konnten etwa noch Lagermöglichkeiten für den Museumsverein geschaffen werden. Vorab hatte der Arbeitskreis Örtlicher Vereine unter Vorsitz von Eckard Giese (TV Seeheim) den Bedarf abgestimmt. Die Küche, die jetzt eine Größe von 30 Quadratmetern vorweist, stieß zudem von Planung und Ausstattung her allgemein auf große Zustimmung. Und sogar einige Detailfragen wie „Türschließung von rechts oder von links“ konnten angesprochen und aufgenommen werden. Der Kellerplan (Stand Mai 2021) mit der aktuellen Raumverteilung.

Frühjahr 2021: In Leistungsphase 3
Mit der Zustimmung der Gemeindevertretung im Dezember 2020 zur Vorentwurfsplanung, die Bestandteil der Leistungsphase 2 ist, befindet sich das Projekt derzeit in der Leistungsphase 3, in der es um die konkrete Entwurfsplanung inklusive der Kostenberechnung geht. Das Ergebnis soll aller Voraussicht nach in der am 16. September 2021 stattfindenden Sitzung der Gemeindevertretung präsentiert werden.

Januar 2021: Größere Küche
Bei der letzten Sitzung des „Runden Tisches“ am 13. Januar 2021 war unter anderem die Größe der Küche ein Thema. Mit den vorgesehenen 21 Quadratmetern erschien sie einigen Nutzern, wie der Arbeitskreis Örtlicher Vereine (AÖV) berichtete, als zu klein. Auch die fehlende direkte Anbindung an die Halle wie in der alten Sport- und Kulturhalle wurde kritisiert. Das Planungsbüro hat daraufhin die Raumaufteilung so verändert, dass nun eine Küche mit einer Größe von 31 Quadratmetern Platz findet. Eine direkte Anbindung an die Halle ist aus Brandschutzgründen jedoch nicht möglich, die Erschließung erfolgt über einen Flur.

Dezember 2020: Kosten
Am 17. Dezember 2020 wurde in der Sitzung der Gemeindevertretung der Vorentwurfsplanung der Leistungsphase 2 zugestimmt. Als Baukostenobergrenze wurden dabei 17 Millionen Euro festgeschrieben. Planer und Projektsteuerer sind angewiesen, bei der weiteren Planung diese Obergrenze einzuhalten. Der Bau wird durch öffentliche Fördergelder unterstützt.

Juni 2020: Neubau Untergeschoss
Die Gemeindevertretung hat in ihrer Sitzung am 18. Juni 2020 den Beschluss gefasst, den Keller der Sport- und Kulturhalle nicht zu sanieren, sondern einem Neubau des Kellergeschosses den Vorzug zu geben. Eine umfassende Bestandsbegutachtung des Untergeschosses durch den Generalplaner hatte ergeben, dass der Sanierungsbedarf wesentlich größer ist als bislang angenommen. Unter anderem weist die Decke nicht die erforderlichen Brandschutzqualitäten auf und auch was die Statik angeht, sind an Wänden und Decke umfangreiche Maßnahmen erforderlich. Da die Kostendifferenz zwischen der notwendigen Sanierung und einem Neubau lediglich rund 200.000 Euro beträgt, hatte sich bereits der „Runde Tisch“ Ende Mai und dann in Folge der Bau- sowie der Haupt- und Finanzausschuss für einen Kellerneubau ausgesprochen. Bitte beachten: Der Plan rechts bildet den Planungsstand Mitte 2020 ab.

2020: Von der ersten groben Einschätzung bis zur Inbetriebnahme
Die Planungsabschnitte bei der Realisierung von Bauvorhaben sind, was die Gesamtleistung von Architekten angeht, in sogenannte Leistungsphasen unterteilt. In der Leistungsphase 1 geht es um eine erste Grundlagenermittlung, in der Leistungsphase 2 findet die Vorplanung mit einer Kostenschätzung statt. Entwurfsplanung inklusive Kostenberechnung gehören in die Leistungsphase 3, in Phase 4 und 5 werden Genehmigungs- und Ausführungsplanung durchgeführt. Um die Vergabe geht es in den Leistungsphasen 6 und 7: zunächst um die Vorbereitung der Vergabe und dann um die Koordination und den Vergleich. In der Leistungsphase 8 steht die Bauüberwachung und die Dokumentation im Vordergrund, in der Leistungsphase 9 die Objektüberwachung mit der Gewährleistungsbetreuung.

2020: Generalplaner
Das Planungsbüro Loewer+Partner Architekten aus Darmstadt konnte sich mit seiner Konzeptidee von einem „Dorf“ statt einer Halle vor dem Auswahlgremium im Vergabeverfahren gegen vier weitere Konkurrenten durchsetzen. Anfang 2020 hat es mit seiner Arbeit als Generalplaner begonnen.

2019: Runder Tisch
Der „Runde Tisch“ begleitet das Projekt von Anfang an und kommt zusammen, wenn es etwa um konkrete Anforderungen der Nutzer oder um detaillierte Gestaltungsfragen geht. Neben Mitarbeitern der Verwaltung gehören ihm Vertreter von Vereinen und Parteien sowie sogenannte sachkundige Bürger an. Planungsschritte werden hier vorgestellt und diskutiert, Wünsche und Bedürfnisse formuliert und mit der Planung verbunden. Der „Runde Tisch“ hat als beratendes Gremium eine wichtige Funktion, aber keine Beschlusskraft.

2019: Projektsteuerung
Mit der Projektsteuerung wurde die Firma Hitzler Ingenieure mit ihrer Niederlassung in Frankfurt beauftragt, die - wie bei öffentlichen Bauprojekten in dieser Größenordnung üblich – die Steuerung und Kontrolle der Termin- und Kostenziele innehat.
Ziele des Projektes
Das Bauprojekt bietet unserer Gemeinde ein neues Forum für viele wichtigen Belange unserer Bürgerinnen und Bürger. Das fördert die Gemeinde und ihre Mitglieder insgesamt.

zentral
Zurzeit sind kommunale Infrastruktureinrichtungen wie zum Beispiel Büchereien, Sitzungssäle, die Gemeindeverwaltung oder das Archiv in verschiedenen Liegenschaften an unterschiedlichen Orten untergebracht. Grundlegende Idee ist es jetzt, diese Einrichtungen zentral im Forum am Rathaus zu konzentrieren. Der Neubau soll mit den Nutzungen als Sport- und Kulturhalle, Gemeindebibliothek und Bürgerbüro zentraler Ort der Versammlung für politische, bürgerschaftliche, soziale und vereinsinterne Aktivitäten in der gesamten Gemeinde werden. Die Freifläche, die mit dem Projekt geschaffen wird, liegt direkt im Mittelpunkt der Gemeinde. Zudem soll die Fußwegeverbindungen zwischen dem Haltepunkt ÖPNV und der östlichen Wohnanlage und dem Friedhof gestärkt werden. Durch die Ausrichtung und Öffnung des Hallengebäudes zum Rathaus in der Schulstraße und die Verbindung der Freiflächen soll ein Bezug zwischen den Gebäuden geschaffen werden und zu einem großen Ganzen verschmelzen.

sozial
Aufgrund der Vielfalt der Angebotsmöglichkeiten können und sollen sich die verschiedenen sozialen Gruppen in den neuen Räumlichkeiten treffen. Als Ort der Kommunikation soll damit der Austausch unter diesen Gruppen gefördert werden. Das gesamte Angebot soll barrierefrei und gut erreichbar sein.

vielseitig
Für den Bereich der Bürgerbildung sollen die beiden Gemeindebibliotheken zusammengelegt und zu einer modernen Mediathek ausgebaut werden. So gibt es derzeit an den beiden Bibliotheksstandorten keine Flächen für Gruppenarbeiten oder für Veranstaltungen. Diese Flächen sollen mit der Neuunterbringung der Gemeindebibliothek realisiert werden. Eine attraktive Außenfläche, die durch die Gemeindebibliothek für Freiluftveranstaltungen wie zum Beispiel Lesungen und Veranstaltungen mit Kindern, Jugendlichen und Schulklassen genutzt werden kann, bereichert die gesamte Gemeinde.
Die Sport- und Kulturhalle in ihrem Bestand hat bislang einen Großteil der Sportangebote für eine Sporthallennutzung für die Gesamtgemeinde übernommen. Wichtige Angebote wie Mutter-Kind-Turnen, Seniorenturnen oder Yoga waren hier neben klassischen Vereinssportarten wie Ringen, Radball vertreten. Um unser Vereinswesen noch weiter zu stärken, wird die neue Halle diese Möglichkeiten wieder bieten können.

nachhaltig
Durch die Entstehung eines neuen Mittelpunkts für die Gemeinde wird die Identifizierung mit der Gemeinde nachhaltig gestärkt und das soziale, gesellschaftliche und kulturelle Leben gefördert. Die neuen Räumlichkeiten werden zudem nach den momentanen Anforderungen für Klima- und Nachhaltigkeit unter Heranziehung wirtschaftlicher Aspekte geplant.
Durch den er Bau einer Tunnelrigolenanlage wird die nachhaltige Versickerung von Regenwasser unterstützt. Große Niederschlagsmengen werden den Rigolen über Halbschalen im Boden sowie über Sammelleitungen von den Dächern der Forumsgebäude zugeführt und in den miteinander verbundenen Röhren verteilt. Das Wasser wird dann nach und nach entsprechend der Versickerungsfähigkeit des Bodens dem Erdreich und damit dem Grundwasser wieder zugeführt. Daneben erhält das Projekt auch einen Eisspeicher, der neben einer Sole-Wasser-Wärmepumpe Teil der Heizungsanlage mit erneuerbaren Energien ist.
Die Gemeindeverwaltung ist zurzeit auf einem angemieteten Gebäudekomplex der Sparkasse am Georg-Kaiser-Platz 3 untergebracht. Durch die Unterbringung der Verwaltungsbüros im Neubau der Sport- und Kulturhalle können große Kostenersparnisse im Unterhalt für die Gemeinde langfristig generiert werden.
Meilensteine
Frühjahr 2018
Entscheidung für „Mittellösung light“
Frühjahr 2019
Projektsteuerer beginnt mit seiner Arbeit
Oktober 2019
Entscheidung für „Maximallösung 3G“
Q I 2020
Generalplaner beginnt mit seiner Arbeit
September 2020
Entscheidung der Gemeindevertretung über die endgültige Gestaltung
Q II 2022
Beginn der Abbrucharbeiten
1. Spatenstich am 15. Juli 2022
Q IV 2022
Beginn der Neubaumaßnahme
Februar 2023
Grundsteinlegung
September 2023
Richtfest
Q IV 2025
Inbetriebnahme und Soft-Opening
